Proyecto Integrador IIP 2022
Técnico Profesional en Producción en Diseño de Interiores

Programa con Acreditación en Alta Calidad

RESPONSABILIDAD AMBIENTAL EMPRESARIAL

Economía circular y medio ambiente en sintonía con el adulto mayor

Las necesidades de la población adulta mayor no son priorizadas al pensar en la intervención del espacio arquitectónico y/o urbano. Desde el programa técnico profesional en Producción en Diseño de Interiores, se buscó incentivar un sentido de responsabilidad hacia la intervención del espacio para que este fuera sostenible, inclusivo y accesible.

Para el segundo periodo del 2022 se abordaron cuatro énfasis desde la ejecución del proyecto Integrador del programa.

Fundamentación I

Docente tutor: Fabio Charry

A partir de la apropiación de los conceptos de la Economía Circular, se desarrollaron propuestas de revestimientos arquitectónicos a partir de la reutilización de residuos sólidos identificados en la FADP.

EcoSpace

Fundamentación II

Docentes tutores: Victoria Rivas, Marco Arango Rodas

Desde este énfasis se desarrollaron propuestas de soluciones técnicas desde la producción en diseño de interiores para la gestión, separación y recuperación de residuos sólidos en la FADP.

Serial planes

Autores: Natali Arteaga Criollo; Ana Sofía Fajardo Durango; Juan Sebastián Narváez Muñoz y Michelle Rodríguez Córdoba.

Descripción: Mueble multifuncional para ser ubicado en las zonas de oficina. Cuenta con cesto de basura. Altura de 1.60 y un ancho de 74 cm facilitando su ubicación en espacios pequeños y con la facilidad de trasladarse; en la parte superior cuenta con varias divisiones que sirven para acomodar los papeles que serán reciclados

Punpatón

Autores: Kevin Joan Mesa Meza, Isabela Cabal Diaz.

Descripción: Mueble para ser fijado en las paredes de los salones. Dimensiones de 1.20 x 50 x 50 cms; cuenta con dos compartimentos en el cual se retazos de materiales que hayan sobrado en la elaboración de maquetas, en el medio tenemos un espacio vacío que es para el almacenaje de papel para reciclar y reutilizar, y en el entrepaño de la parte superior es para el almacenaje de cartón más grande o pliegos de papel usado para planos. Este proyecto está desarrollado con madera reciclada de estibas.

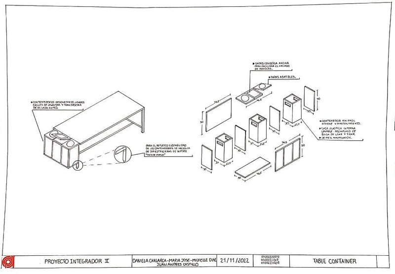
Table Container

Autores: Daniela Chalarca Toro, Michell Dayana Diaz Valencia, Juan Andrés Castillo Gutiérrez, María José Quintero Trujillo

Descripción: Un producto que ayuda a separa los residuos con mas facilidad por estar tan cerca desde el puesto de trabajo en el patio de la FADP. Sería como un auxiliar de los botes de reciclaje que se encuentran en distintos puntos de la zona, ya que no se hacen un buen uso de ellos. Su función precisamente es cumplir con un correcto desecho de los residuos que los estudiantes dejan en las mesas de trabajo cumpliendo con una mejor disponibilidad.

Proyecto de Intervención para el Taller de Muebles de la FADP

Autores: Juan Sebastián Baquero  Marín,  Cristian  Beleño  Serna,  Juan Pablo Bravo Aponte, Carolina Cabezas Quintana, Jannin Yulitza Caro Rosero, Lauren Oriana Colorado Mesa, Daniel Alberto Cruz Ortiz, Joffre Smith Cuartas Mendieta, Britney Arian Girón Villacorte, María José Gómez Heredia, Estefanía González Arenas,  Darcy  Daniela Guzmán Baos,  Oscar Andrés Hernández Gómez,  Yessica  Natalia  Londoño  Agudelo,  Natalia  Mena  Cortes,  Cristian Morillo  Llumiquinga,  Luz  Alba  Ortiz  Batalla, Ángela Patricia  Ossa  Castillo, Johan Alejandro Perea Castillo, Diana Marcela Ramírez Castaño, Valeria Rojas Londoño, Karen Tatiana Tovar Villa, Edwin Fernando Vargas Sandoval, Simón Zapata Franco y Marcela Zapata Quiroga.

Descripción: Los estudiantes de 2do semestre de la jornada sabatina realizaron una intervención espacial para transformar un aula de clase en el taller de Muebles de la institución.

Puedes ver los resultados de Fundamentación I y Fundamentación II en el siguiente botón; estos proyectos Integradores hacen parte del Laboratorio de Economía Circular.

Soluciones Productivas

Docente tutor: Carolina Daza Escobar

Desde el énfasis se pretende descubrir, construir y proponer soluciones productivas que puedan funcionar bien ya sea como producto o servicio en el mercado a partir de la identificación de una idea según competencias adquiridas y perfil de formación, tomando como base las nuevas tendencias del diseño de interiores, la economía circular y economía naranja.

“Alma Café: Un lugar para vivir”, un café pensado desde el diseño interior, para el adulto mayor

Autores: Claudia Alexandra Chazy Tovar; Patricia Devia Franco y Elodia Rentería Rentería 

Habitsafe, empresa de asesorías enfocada en remodelación y adecuación de baños para adultos mayores

Autores: Dayanna Andrea Vargas Bastidas; Mariana Trujillo Saavedra; Daniela Cortés Giraldo; Andrea Pantoja Vargas y Grace Fernández Castillo

Nona Sister; APP para el adulto mayor

Autores: Sofia Benavides; Mariana Betancur; Juliana Pinto 

Casa club Utopía, idóneo para personas mayores de 50 años.

Autores: Dangelly Calvache Perdomo, Diana Catalina Peña Bolaños, Omar stiven Méndez Tovar

Proyección Social

Docente tutor: Marco Arango Rodas

Para este periodo se realizaron intervenciones espaciales para mejorar la calidad de vida de la población adulta mayor del Hogar Geriátrico Ancianato San Miguel, tomando presente los principios de la economía circular y la economía naranja.

Sala de Juegos

Autores: Cesar Jiménez Oquendo, Paula Pérez Marquez, Catalina Cristancho García, Luz Dary López Saucedo, Vanesa Ocampo Soto, Nicole Ramírez Guampe

Enfermería

Autores: Yamilet Guzmán Marín, Angelica Garzón Ruiz, Fabian González Batero, Jean Pierre Gutiérrez, Alejandra Román Otalvaro, Sara Isabel Romero Muñoz

Imágenes antes

Imágenes ejecución

Imágenes resultado

Articulación con el Medio

Docente tutor: Victoria Rivas

A partir de los principios de economía circular y economía naranja, se desarrollaron propuestas paisajísticas para mejorar la práctica recreativa y deportiva de la población adulta mayor en los espacios públicos y de esparcimiento.

Parque Pampalinda

Autores:
Dafna Dussan, Valeria González

Parque Barrio La Merced

Autores: Araceli Benítez Castro; Luisa Fernanda Muñoz Henao; Valentina Manzano Chávez y Sara Isabel Hoyos Caicedo

Fundación Academia de Dibujo Profesional

¿Quién eres?

Mapa del sitio